Die Gondelbahn Andermatt - Nätschen - Gütsch wird Realität
Die Andermatt-Sedrun Sport AG (ASS) darf sie endlich bauen: die 8er-Gondelbahn Andermatt – Nätschen – Gütsch. Nach der Zustimmung des Bundesamts für Verkehr (BAV) können nun der Zusammenschluss der Skigebiete und die Modernisierung der Anlagen erfolgen.
Mit der Bewilligung für die 8er-Gondelbahn Andermatt – Nätschen – Gütsch erlebt die SkiArena Andermatt-Sedrun einen weiteren Meilenstein. Einige Vorbereitungsarbeiten wie das Legen von Leitungen oder die Strassenanpassung wurden dank der Genehmigung des vorgezogenen Baubeginns bereits vor ein paar Tagen in Angriff genommen.
Da jetzt definitiv keine Einsprachen eingetroffen sind, kann nun auch offiziell mit dem Bau der Gondelbahn begonnen werden, weshalb die SkiArena Andermatt-Sedrun zum Spatenstich geladen hat. Die Bauarbeiten haben prominente Paten: Der Spatenstich wurde nicht nur von den Unternehmens- und Projektleitern ausgeführt, sondern auch von Regierungsrätin Heidi Z’graggen und Olympiasieger Bernhard Russi.
Je nach Wetterlage wird die Talstation noch in diesem Jahr fertiggestellt. Der Spatenstich in Andermatt gilt gleichzeitig auch für den Bau der Bergstation Gütsch, des Pumpenhauses Oberalpsee sowie diverser Pisten und Beschneiungsanlagen.
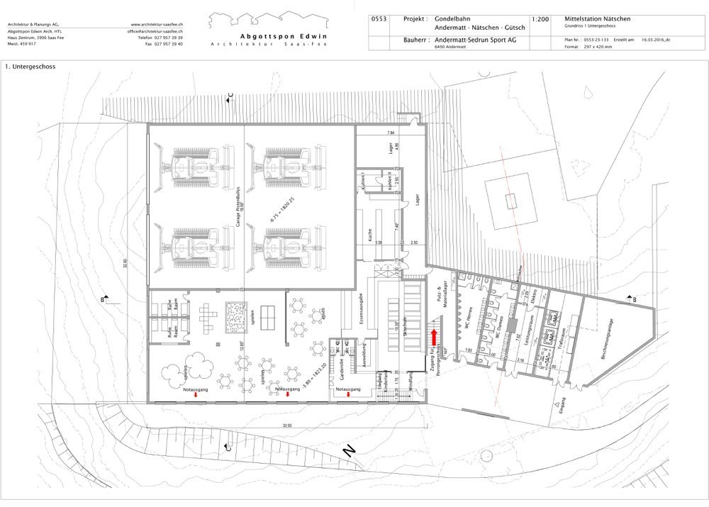
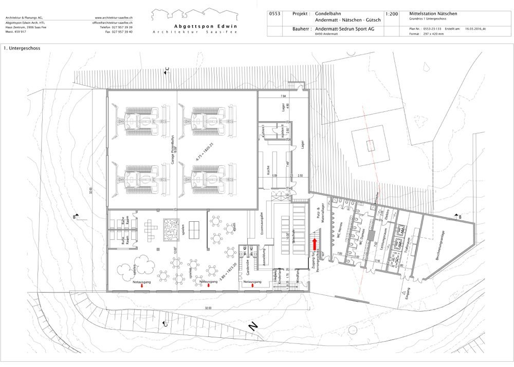
Die Talstation Andermatt stellt einen Knotenpunkt für die Schneesportler dar. Die Skipiste führt unmittelbar bis zum Drehkreuz der neuen Gondelbahn, und der Bahnhof Andermatt ist durch die Personenunterführung mit Laufband ebenfalls direkt angebunden.
Die Baustelle praktisch mitten im Dorf ist sehr komplex. Alleine die Umsetzung der Personenunterführung bedingt eine einwandfreie Koordination und Zusammenarbeit mit der Matterhorn Gotthard Bahn.
Es ist geplant, die neue Unterführung am Bahnhof und die 8er-Gondelbahn Andermatt – Nätschen – Gütsch auf die Wintersaison 2017/18 in Betrieb zu nehmen.
Die technischen Daten
- Bauzeit: September 2016 bis Dezember 2017
- Förderleistung: 2.000 bis 2.400 Pers./h
- Länge: 1.079,9 m (Nätschen), 1.902,2 m (Gütsch), total 2.982,1 m
- Höhendifferenz: 389,5 m (Nätschen), 535 m (Gütsch), total 924,5 m
- Anzahl Stützen: 7 (Nätschen), 11 (Gütsch), total 18
- Bahnhersteller: Garaventa AG, Goldau
- Steuerung: Frey Stans AG
- Gondelbauer: CWA Constructions
- Baufirmen: Implenia AG (Stationen Andermatt und Nätschen sowie die Strecke) und Loretz SA (Station Gütsch)
Das Gesamtprojekt der Skigebietsverbindung Andermatt-Sedrun umfasst den Bau von insgesamt 14 Transportanlagen, davon 10 Anlagen in der ersten (4 Neubauten, 5 Ersatzanlagen und 1 Umbau) und 4 Anlagen in der später folgenden zweiten Etappe (3 Neubauten, 1 Ersatzanlage). Gleichzeitig werden auch die Beschneiungsanlagen, Pisten und Restaurants ausgebaut.
Artikel von: Andermatt Swiss Alps AG
Bilder: Andermatt Swiss Alps AG

















